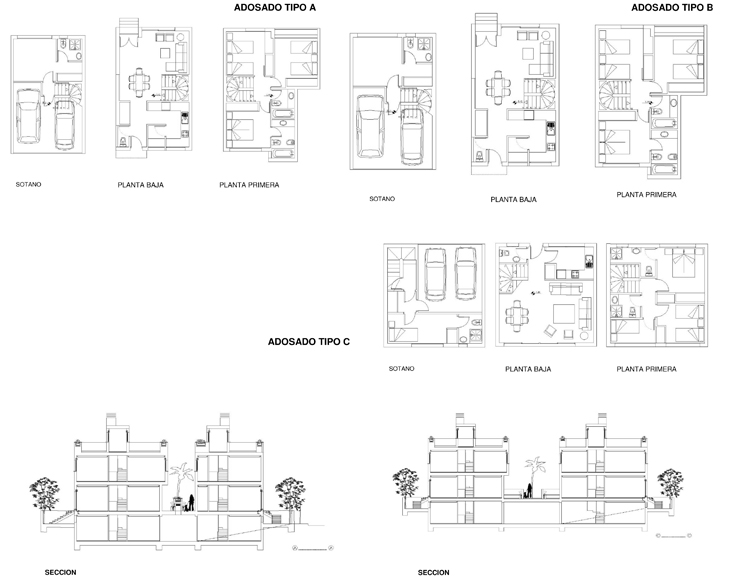
• HOUSING PROJECT IN SAN ANTONIO IBIZA

Client: TME S.L
Location: Avd San Agustin nº 130. San Antonio Ibiza.
Date: 1/04/2009
Budget: 4.550.000 euros

  • Alon Architects&Partners ©
  • Artwork by: